Trong bối cảnh đô thị hóa nhanh và nhu cầu thuê nhà ngày càng lớn tại TP.HCM, thiết kế căn hộ dịch vụ tại TPHCM đang trở thành lựa chọn đầu tư hấp dẫn và hiệu quả. Mô hình căn hộ dịch vụ không chỉ mang đến nguồn thu ổn định mà còn giúp chủ đầu tư tối ưu giá trị đất, phù hợp xu hướng sống hiện đại. Với khả năng kết hợp linh hoạt giữa nhà ở và cho thuê, căn hộ dịch vụ đang là giải pháp lý tưởng cho các nhà đầu tư cá nhân và doanh nghiệp nhỏ. Tại TP.HCM – nơi quỹ đất ngày càng hạn hẹp, việc thiết kế căn hộ dịch vụ thông minh, thẩm mỹ và hiệu quả kinh tế chính là chìa khóa dẫn đến thành công. Bằng kinh nghiệm và sự sáng tạo, Nhaxanhcons cam kết mang đến các giải pháp thiết kế thi công căn hộ dịch vụ tại TPHCM tối ưu nhất, vừa đáp ứng công năng, vừa nâng cao giá trị đầu tư lâu dài.
Thông tin chung công trình
Dự án : Căn hộ dịch vụ mini
Chủ đầu tư : Mr Andy
Địa chỉ : Quận 9 - TPHCM
Quy mô : Hầm- Trệt - Lửng - 3 lầu -1 tum
DTXD : 5 m x 20m
Đơn vị thiết kế và thi công trọn gói : Kiến trúc xây dựng Nhà Xanh

Hình ảnh 01: Thiết kế căn hộ dịch vụ tại TPHCM
1. Mô tả công năng căn hộ dịch vụ mini
Căn hộ dịch vụ do Nhà Xanh thiết kế gồm tổng thể 5 tầng, trong đó có tầng lửng và 4 tầng lầu, được bố trí công năng khoa học nhằm tối ưu diện tích sử dụng.
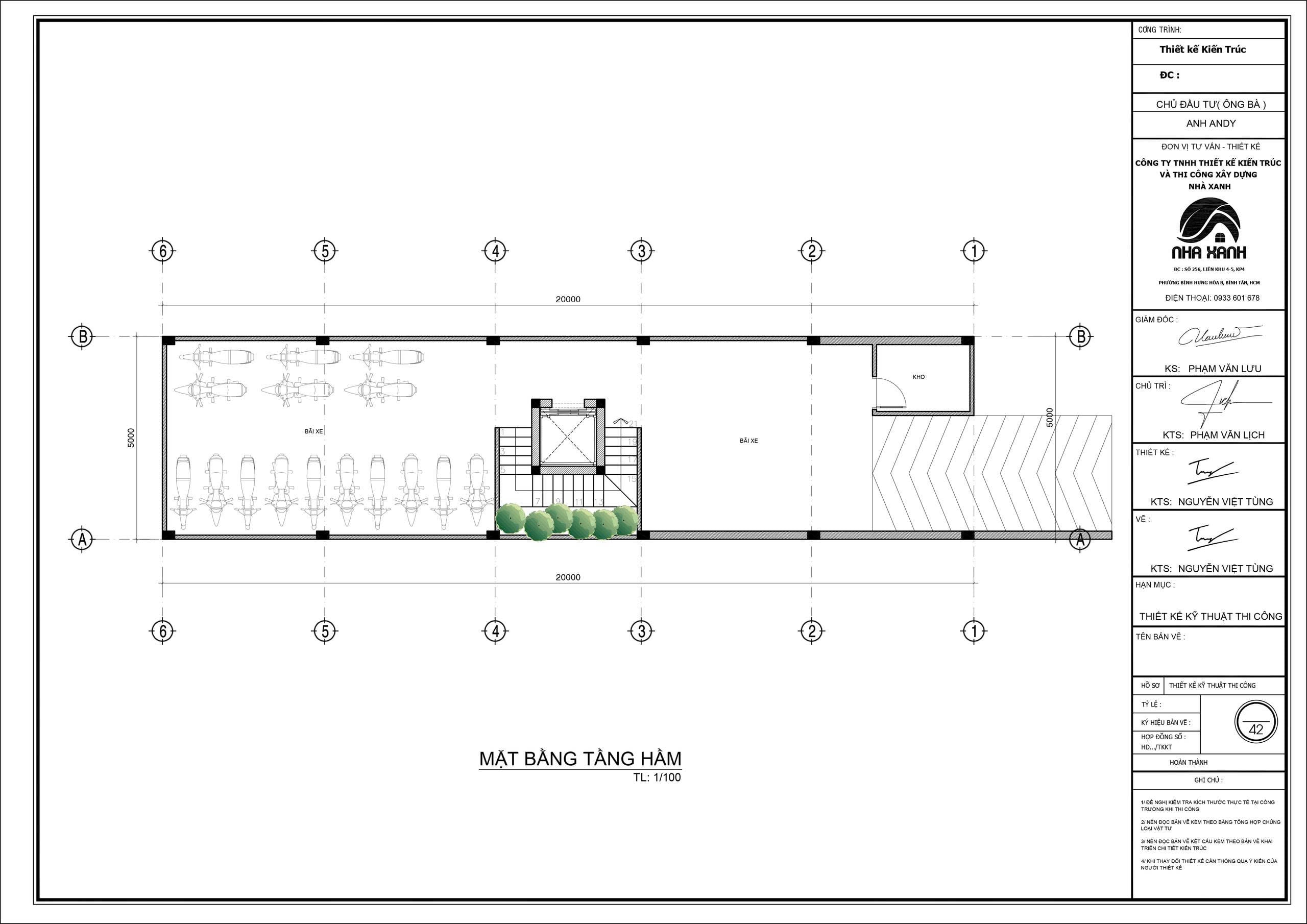
Tầng hầm được sử dụng làm khu vực để xe cho cư dân và khách thuê, có sức chứa lớn với nhiều chỗ đỗ xe máy và một số vị trí đỗ ô tô. Lối xuống hầm nằm phía trước công trình, thuận tiện di chuyển. Ở giữa mặt bằng là lõi giao thông đứng gồm thang bộ và thang máy, kết hợp mảng xanh trang trí giúp không gian trở nên thoáng đãng, dễ chịu. Ngoài ra, tầng hầm còn có phòng kho nhỏ ở phía cuối, dùng để lưu trữ thiết bị, vật tư hoặc đồ bảo trì cho tòa nhà.

Hình ảnh 02: Thiết kế tầng hầm căn hộ dịch vụ tại TPHCM
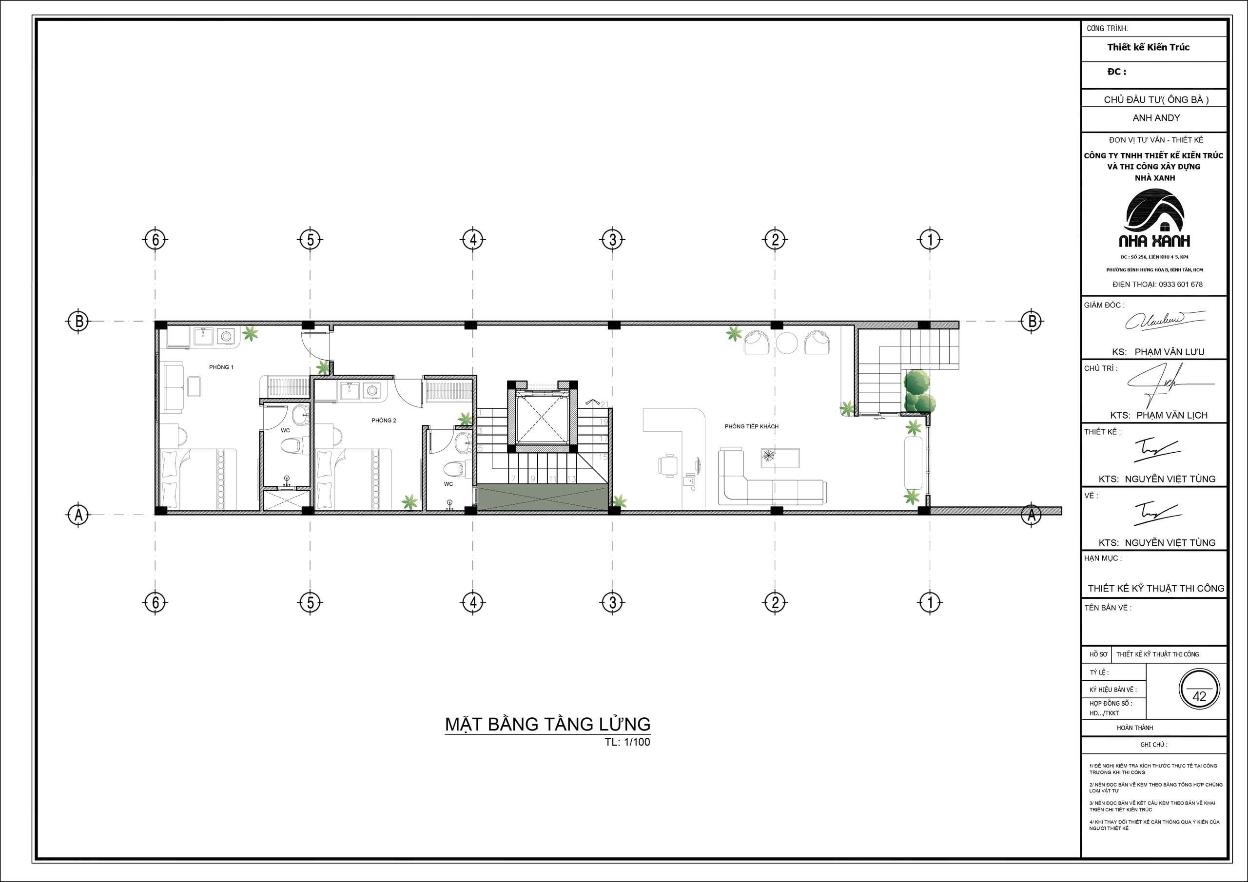
Tầng lửng được thiết kế với khu tiếp khách hiện đại phía trước, khu thang bộ – thang máy ở giữa và hai phòng ngủ khép kín phía sau. Mỗi phòng đều được bố trí đầy đủ tiện nghi như giường, tủ, bàn làm việc và nhà vệ sinh riêng, kết hợp mảng xanh và giếng trời giúp đón sáng, thông gió tự nhiên, mang lại cảm giác thoải mái cho người ở.

Hình ảnh 03: Thiết kế tầng lửng căn hộ dịch vụ tại TPHCM
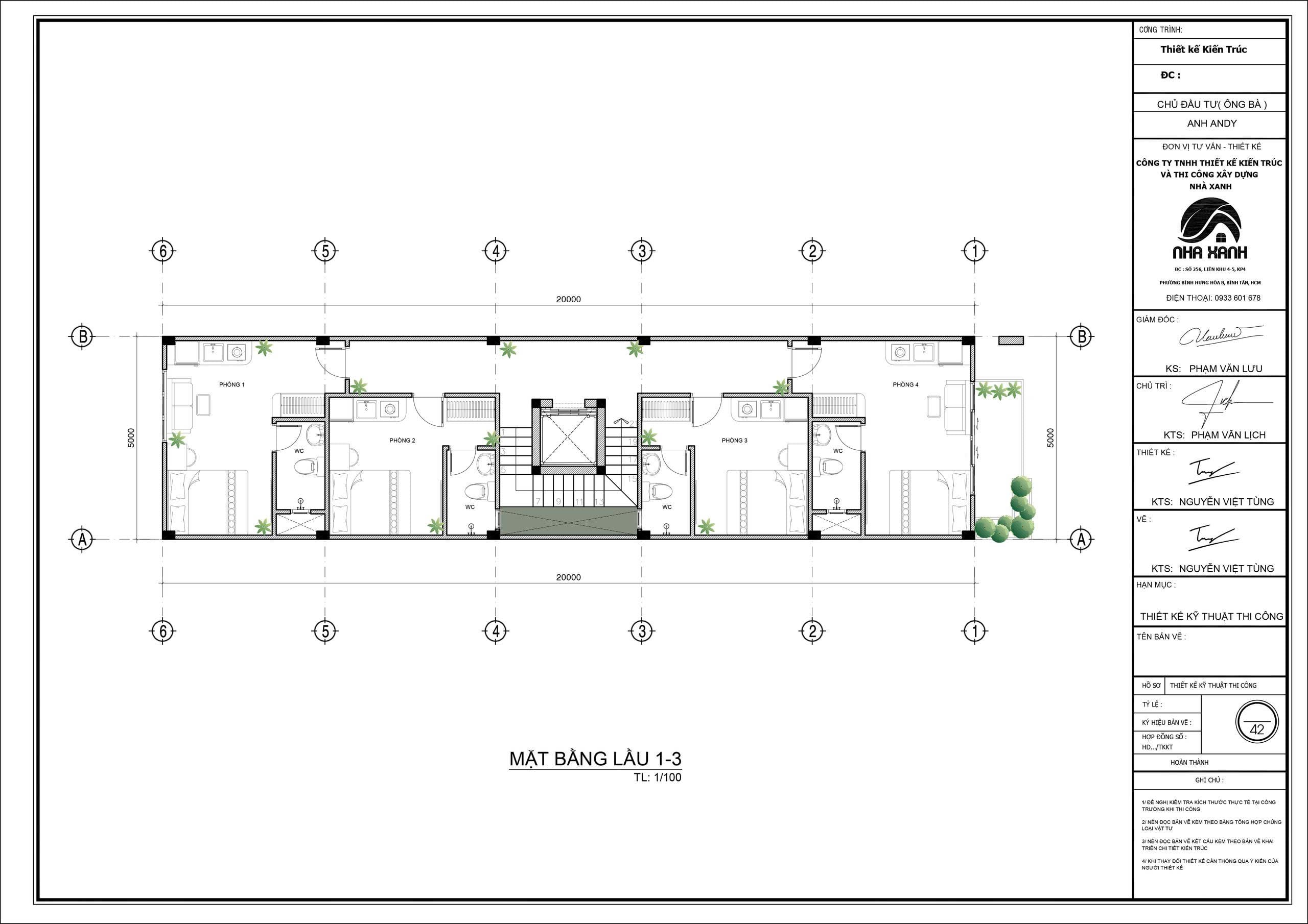
Từ tầng 1 đến tầng 3, không gian được chia thành 4 căn hộ mini khép kín mỗi tầng, phù hợp cho thuê dài hạn. Mỗi căn hộ đều có khu sinh hoạt – ngủ, bếp nhỏ và phòng vệ sinh riêng, đảm bảo tính riêng tư và tiện nghi đầy đủ cho người thuê. Lối đi chung và khu vực thang được bố trí giữa nhà giúp các phòng đều có khả năng lấy sáng và thông gió tốt. Cây xanh xen kẽ trong thiết kế tạo điểm nhấn tự nhiên, cân bằng không khí cho toàn công trình. Đây là một mẫu thiết kế căn hộ dịch vụ mini ngang 5m điển hình, được tối ưu về diện tích nhưng vẫn đảm bảo công năng và thẩm mỹ.

Hình ảnh 04: Thiết kế tầng 1, tầng 3 căn hộ dịch vụ tại TPHCM
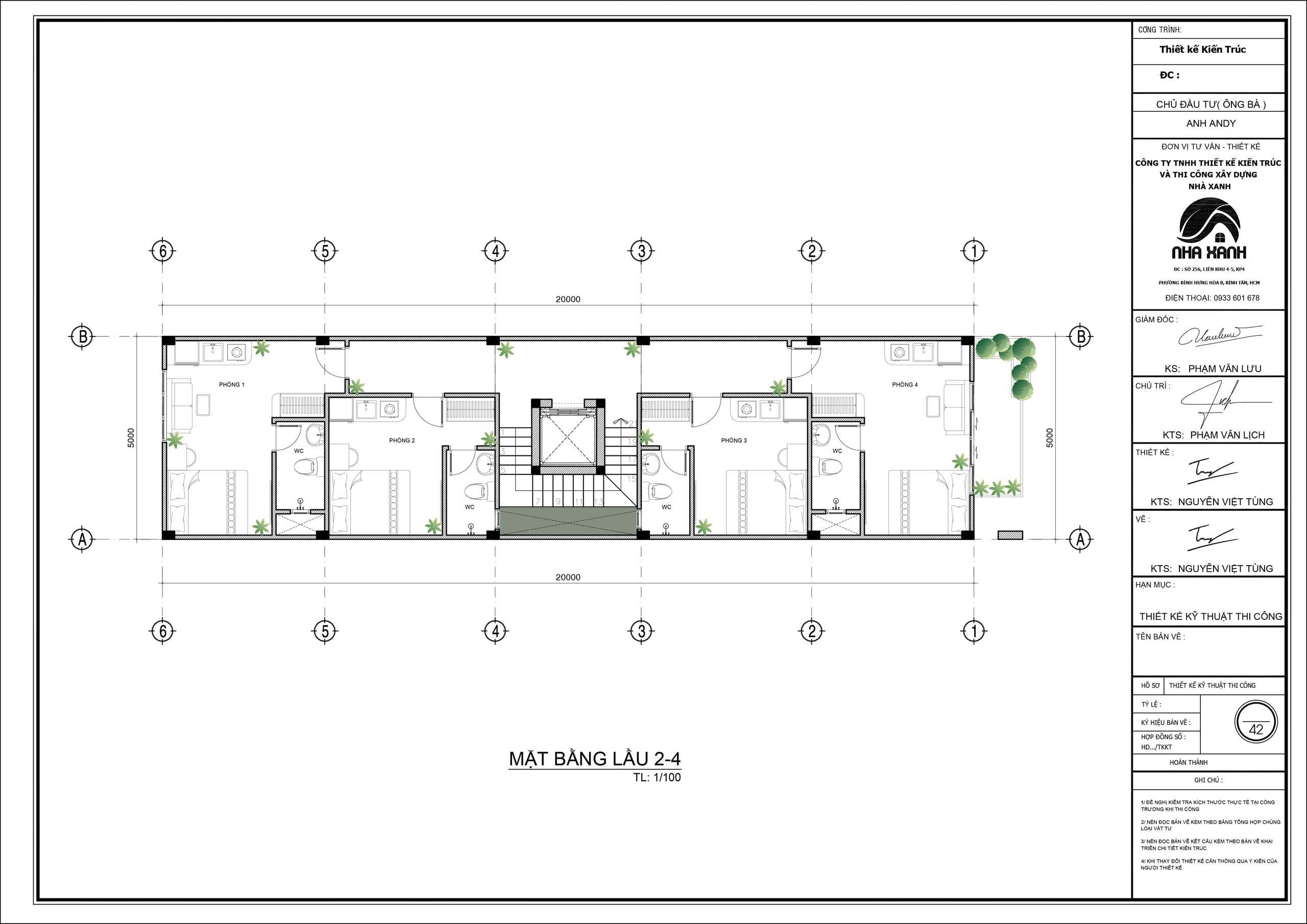
Tầng 2 đến tầng 4 được thiết kế tương tự, nhân đôi công năng, mang lại tổng cộng khoảng 18–20 căn hộ cho toàn bộ tòa nhà. Phong cách thiết kế hiện đại, tinh tế, hướng đến đối tượng khách hàng là nhân viên văn phòng, chuyên gia hoặc hộ gia đình nhỏ, vừa tiện nghi vừa gần gũi thiên nhiên.

Hình ảnh 05: Thiết kế tầng 2, tầng 4 căn hộ dịch vụ tại TPHCM
Tầng tum của công trình đóng vai trò phục vụ kỹ thuật và sinh hoạt chung, với khu sân phơi, khu kỹ thuật mái phía sau và sân thượng cây xanh phía trước, tạo không gian thư giãn và tăng giá trị thẩm mỹ cho tòa nhà. Tổng thể công trình không chỉ đảm bảo công năng sử dụng hiệu quả mà còn mang đến môi trường sống hiện đại, thoáng mát và thân thiện với thiên nhiên.

Hình ảnh 06: Thiết kế tầng tum căn hộ dịch vụ tại TPHCM
2. Mô tả thiết kế kiến trúc căn hộ dịch vụ tại TPHCM
Công trình căn hộ dịch vụ do Nhaxanhcons thiết kế là một ví dụ điển hình của thiết kế căn hộ dịch vụ mini tại TPHCM, được đánh giá cao về tính thẩm mỹ và công năng tối ưu. Tòa nhà cao 5 tầng, gồm tầng hầm, tầng lửng, 4 tầng lầu và tầng tum kỹ thuật, được bố trí hài hòa nhằm khai thác tối đa diện tích sử dụng trên lô đất ngang 5m.
Tầng hầm đóng vai trò là khu vực để xe an toàn và tiện lợi, được thiết kế đảm bảo thông gió và ánh sáng. Tầng lửng được bố trí làm khu sinh hoạt chung, tiếp khách, tạo ấn tượng đầu tiên cho người thuê. Từ tầng 1 đến tầng 4 là các căn hộ mini khép kín, được bố trí khoa học gồm khu sinh hoạt – ngủ, bếp nhỏ và phòng vệ sinh riêng. Mỗi căn đều có cửa sổ hoặc ban công hướng sáng, giúp không gian luôn thoáng mát.
Tầng tum được tận dụng làm sân thượng và khu kỹ thuật, có thể kết hợp mảng xanh tạo nên không gian thư giãn. Nhờ thiết kế thông minh, dự án này không chỉ đáp ứng nhu cầu lưu trú mà còn tối ưu chi phí vận hành, là lựa chọn lý tưởng cho các nhà đầu tư muốn xây căn hộ dịch vụ mini tại TPHCM.

Hình ảnh 07: Mô tả Thiết kế kiến trúc căn hộ dịch vụ tại TPHCM
3. Xu hướng thiết kế căn hộ dịch vụ tại TPHCM
Thị trường bất động sản TP.HCM đang chứng kiến sự bùng nổ mạnh mẽ của thi công căn hộ dịch vụ 5 tầng tại TPHCM, khi nhu cầu thuê căn hộ tiện nghi, riêng tư ngày càng tăng cao. Các công trình mới đều hướng tới phong cách hiện đại, chú trọng mảng xanh, ánh sáng tự nhiên và công năng linh hoạt.
Xu hướng thiết kế hiện nay tập trung vào ba yếu tố chính:
- Tối ưu diện tích sử dụng – Từng mét vuông đều được tận dụng để mang lại sự thoải mái tối đa cho người ở.
- Phong cách hiện đại – tối giản – Màu sắc trung tính, vật liệu bền, dễ bảo trì giúp tiết kiệm chi phí thi công và vận hành.
- Ứng dụng công nghệ và vật liệu xanh – Góp phần tạo không gian sống thân thiện môi trường, giảm năng lượng tiêu thụ.
Nhaxanhcons luôn đi đầu trong việc áp dụng các giải pháp thi công căn hộ dịch vụ 5 tầng 1 hầm tại TPHCM theo hướng bền vững và thẩm mỹ. Từ khâu thiết kế, xin phép xây dựng đến thi công hoàn thiện, đội ngũ của Nhaxanhcons đảm bảo mọi chi tiết đều đạt chuẩn kỹ thuật, đáp ứng kỳ vọng của chủ đầu tư.

Hình ảnh 08: Xu hướng Thiết kế kiến trúc căn hộ dịch vụ tại TPHCM
4. Mô tả thiết kế nội thất căn hộ dịch vụ tại TPHCM
4.1. Tổng Quan Về Thiết Kế Căn Hộ Dịch Vụ 20m2-25m2 - 30m2 -35m2-40m2
Một căn hộ dịch vụ diện tích 20m² thường được thiết kế dạng studio, nghĩa là các không gian sinh hoạt – ngủ – bếp – vệ sinh được bố trí trong cùng một mặt bằng mở, không có tường ngăn cố định, giúp không gian trở nên liền mạch và rộng rãi hơn.
Phong cách chủ đạo được Nhaxanhcons lựa chọn là hiện đại – tối giản (Modern Minimalist), tập trung vào công năng và sự tinh gọn của từng chi tiết. Tông màu sáng như trắng, be, ghi xám, gỗ nhạt được sử dụng để tạo cảm giác rộng rãi, trong khi ánh sáng tự nhiên được khai thác tối đa thông qua cửa sổ lớn hoặc ban công nhỏ.
Nhờ cách bố trí khoa học, căn hộ dịch vụ nhỏ 20m² vẫn đảm bảo đầy đủ các khu vực sinh hoạt cần thiết: phòng ngủ, khu bếp, bàn ăn, khu làm việc nhỏ và nhà vệ sinh riêng. Đây chính là mô hình không gian tiêu biểu mà Nhaxanhcons đã triển khai thành công cho nhiều dự án thiết kế căn hộ dịch vụ mini 5 tầng tại TPHCM.

Hình ảnh 09: Thiết kế nội thất căn hộ dịch vụ tại TPHCM
4.2. Bố trí công năng căn hộ 20m2 khu vực phòng ngủ
Khu vực giường ngủ là điểm nhấn chính của căn hộ. Giường thường được thiết kế đa năng, có thể tích hợp ngăn kéo lưu trữ bên dưới hoặc gấp gọn khi không sử dụng. Một số mẫu còn sử dụng giường tầng thấp kết hợp sofa, giúp tiết kiệm diện tích mà vẫn mang lại sự thoải mái.
Bên cạnh giường là tủ quần áo âm tường hoặc dạng tủ kéo trượt, giúp tối ưu không gian mà vẫn đảm bảo lưu trữ đủ đồ dùng cá nhân. Nhaxanhcons khuyến khích sử dụng vật liệu MDF chống ẩm phủ melamine, vừa đẹp, vừa bền trong điều kiện khí hậu ẩm nóng của TP.HCM.

Hình ảnh 10: Thiết kế nội thất phòng ngủ căn hộ dịch vụ tại TPHCM
Khu Bếp Nhỏ Tiện Dụng
Dù diện tích khiêm tốn, khu bếp vẫn được bố trí gọn gàng, đầy đủ tiện nghi với bếp điện, tủ lạnh mini, bồn rửa, tủ bếp trên – dưới. Thiết kế theo dạng bếp chữ I hoặc chữ L, giúp người sử dụng dễ thao tác và tiết kiệm diện tích.
Mặt bếp sử dụng đá nhân tạo hoặc granite màu sáng, chống bám bẩn, dễ vệ sinh. Hệ thống hút mùi, đèn LED và ổ cắm điện được bố trí hợp lý, đảm bảo an toàn và tiện lợi. Đây cũng là khu vực giúp tăng giá trị khai thác cho căn hộ, bởi người thuê có thể tự nấu ăn và sinh hoạt như một ngôi nhà thực thụ.
Khu Vực Làm Việc Và Ăn Uống
Bàn ăn và bàn làm việc thường được kết hợp chung một khu, sử dụng bàn gấp hoặc bàn treo tường, giúp tiết kiệm không gian. Ghế gấp hoặc ghế nhựa nhẹ dễ di chuyển, mang lại sự linh hoạt trong sử dụng.
Khu vực này thường nằm cạnh cửa sổ hoặc ban công để tận dụng ánh sáng tự nhiên, tạo không gian học tập và làm việc thoải mái. Trong các dự án thi công căn hộ dịch vụ tại TPHCM mà Nhaxanhcons thực hiện, việc bố trí khu ăn – làm việc thông minh luôn là yếu tố được khách hàng đánh giá cao.

Hình ảnh 11: Thiết kế nội thất phòng ăn căn hộ dịch vụ
Phòng Vệ Sinh Riêng Biệt
Phòng vệ sinh được thiết kế kín đáo, hiện đại, chống trượt và dễ vệ sinh, thường sử dụng vách kính cường lực để ngăn khu tắm, giúp không gian sạch sẽ và gọn gàng.
Vật liệu sử dụng chủ yếu là gạch porcelain kích thước lớn, màu sáng, giúp không gian trông rộng hơn. Ngoài ra, hệ thống chiếu sáng, quạt hút mùi và máy nước nóng được bố trí hợp lý, đảm bảo tiện nghi tương đương các căn hộ cao cấp.

Hình ảnh 12: Thiết kế nội thất phòng vệ sinh căn hộ dịch vụ
4.3. Phong cách trang trí và ánh sáng
Ánh sáng là “linh hồn” của mọi không gian nhỏ. Trong căn hộ dịch vụ 20m², Nhaxanhcons đặc biệt chú trọng đến thiết kế ánh sáng đa tầng gồm ánh sáng nền, ánh sáng điểm và ánh sáng trang trí. Đèn LED âm trần, đèn dây hắt tường và đèn thả nhỏ được sử dụng để tạo chiều sâu không gian, đồng thời tiết kiệm điện năng.
Trang trí nội thất ưu tiên vật liệu tự nhiên như gỗ, vải thô, cây xanh nhỏ, giúp mang lại cảm giác ấm cúng và thân thiện. Gương lớn hoặc kính phản chiếu ánh sáng được bố trí ở tường đối diện cửa sổ, giúp căn phòng trông rộng gấp đôi.
Với mỗi dự án tư vấn xây căn hộ dịch vụ tại TPHCM, Nhaxanhcons luôn đưa ra giải pháp trang trí phù hợp phong cách sống đô thị – hiện đại nhưng không kém phần tinh tế.

Hình ảnh 13: Thiết kế phong cách nội thất hiện đại căn hộ dịch vụ
4.4. Chi phí và hiệu quả đầu tư
Một căn hộ dịch vụ 20m² đầy đủ nội thất thường có chi phí thiết kế thi công trọn gói căn hộ dịch vụ dao động, tùy theo vật liệu, phong cách và yêu cầu của chủ đầu tư.
So với mô hình căn hộ lớn, đây là mức chi phí xây căn hộ dịch vụ tại TPHCM khá hợp lý, mang lại hiệu quả đầu tư cao nhờ thời gian thu hồi vốn nhanh (chỉ 3–5 năm). Với chi phí thuê trung bình cao, chủ đầu tư có thể dễ dàng duy trì dòng tiền ổn định, đặc biệt khi thị trường cho thuê tại TP.HCM luôn sôi động.
Nhaxanhcons hỗ trợ thiết kế, thi công và tư vấn đầu tư trọn gói, giúp khách hàng kiểm soát tốt ngân sách, lựa chọn vật liệu bền đẹp, tối ưu công năng và thẩm mỹ mà vẫn đảm bảo hiệu suất sinh lời tối đa.

Hình ảnh 14: Chi phí xây căn hộ dịch vụ tại TPHCM
5. Kinh nghiệm thiết kế căn hộ dịch vụ
Để có một công trình căn hộ dịch vụ 5 tầng tại TPHCM vận hành hiệu quả, chủ đầu tư cần trang bị những kiến thức và kinh nghiệm thực tế. Dưới đây là những lưu ý quan trọng mà Nhaxanhcons đúc kết qua nhiều năm tư vấn xây căn hộ dịch vụ tại TPHCM:
- Xác định khách hàng mục tiêu: Người thuê là nhân viên văn phòng, sinh viên hay chuyên gia sẽ quyết định phong cách thiết kế và mức đầu tư nội thất.
- Tối ưu công năng và ánh sáng: Căn hộ phải thông thoáng, có giếng trời hoặc cửa sổ để đón gió tự nhiên.
- Tính toán chi phí hợp lý: Dựa vào quy mô công trình, Nhaxanhcons sẽ lập dự toán cụ thể giúp chủ đầu tư tối ưu vốn.
- Lựa chọn đơn vị thiết kế – thi công trọn gói: Điều này giúp kiểm soát chất lượng, tiến độ và chi phí hiệu quả hơn.
- Quan tâm khâu vận hành: Thiết kế hệ thống điện nước, phòng cháy, chống ồn và bảo trì dễ dàng để đảm bảo công trình vận hành bền vững.
Với hàng trăm công trình đã hoàn thành, Nhaxanhcons tự hào là đối tác tư vấn xây căn hộ dịch vụ tại TPHCM chuyên nghiệp, đồng hành cùng chủ đầu tư từ ý tưởng đến khi công trình đi vào hoạt động.

Hình ảnh 15: Kinh nghiệm thiết kế căn hộ dịch vụ tại TPHCM
6. Kết Luận
Có thể nói, mô hình thiết kế căn hộ dịch vụ tại TPHCM là lựa chọn đầu tư thông minh, phù hợp với xu hướng phát triển đô thị hiện đại. Với ưu điểm khai thác linh hoạt, lợi nhuận ổn định và giá trị lâu dài, loại hình này đang dần trở thành mẫu nhà ở kết hợp kinh doanh tại TPHCM được ưa chuộng nhất hiện nay.
Nhaxanhcons – đơn vị chuyên thiết kế và thi công căn hộ dịch vụ trọn gói – cam kết mang đến những giải pháp kiến trúc tối ưu, tiết kiệm và thẩm mỹ. Từ việc thiết kế căn hộ dịch vụ mini tại TPHCM cho đến tư vấn chi phí xây dựng, chúng tôi luôn đặt lợi ích của khách hàng lên hàng đầu, đảm bảo mỗi công trình không chỉ đẹp mà còn mang lại hiệu quả đầu tư bền vững.
Nếu bạn đang tìm kiếm một đối tác uy tín để triển khai thiết kế – thi công căn hộ dịch vụ tại TPHCM, hãy liên hệ ngay với Nhaxanhcons để được tư vấn chi tiết, nhận bản thiết k
📍 Công ty TNHH Thiết Kế Kiến Trúc & Thi Công Xây Dựng Nhà Xanh (Nhaxanhcons)
📞 Hotline: 0933 601 678
🌐 Website: www.nhaxanhcons.vn
🎯 Nhaxanhcons – Kiến tạo không gian, nâng tầm giá trị!